Utvalda förstahandskontrakt i Stockholm: flytta in i februari och få första månaden hyresfri. Läs mer.

Stockholm Studentbostad

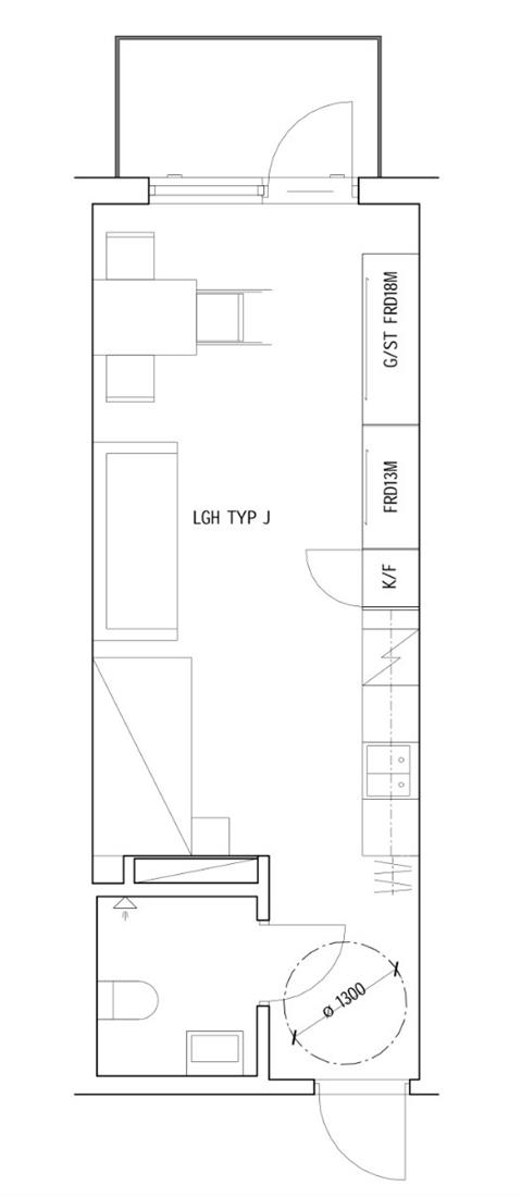
Bromstensvägen 152 lgh 1306

Inflyttning: 1 mar. 2026

På Campus Star erbjuder vi nyproducerade, klimatsmarta och yteffektiva lägenhetern på 1 Rok om 16 kvm till rymliga 2 Rok om 50 kvm. Alla lägenheter har eget kök och badrum.

Bra att veta:

  • Kampanj: Om du tecknar ett avtal på en bostad med inflyttning 1 februari, är februari månad hyresfri! Gäller från 15 januari 2026.
  • Kampanj: Om du tecknar ett avtal på en bostad med inflyttning 1 mars får du 50% rabatt på din första månadshyra. Gäller från 15 januari 2026.

Avgift om 386kr/mån tillkommer utöver månadshyran för diskmaskin och tvättmaskin i lägenheten. Detta är inräknat i annonsens hyra.

Drop-in visning hålls varannan onsdag udda veckor kl. 16.30 i vår visningsbostad (16 kvm). Samling sker utanför entrén vid Nekvägen 41 om du önskar delta. Visning sker ej under helgdagar.

I hallen finns inbyggd förvaring finns i hallen/rum.

Kök är utrustade med kombinerad kyl/frys, spis med ugn och diskbänk.

Badrum är utrustade med handfat, spegelskåp, dusch och toalett.

Möjligheten för extraval så som mikrovågsugn, tvättmaskin och diskmaskin går att lägga till för en månadskostnad.

I Hyran ingår värme, kallvattenförbrukning samt internet (250/250).

El- och varmvattenförbrukning debiteras hyresgästen enligt uppmätt förbrukning.

Studierum, gym, biorum och bokningsbara kök ingår i hyran.

3D visning Gemensamhetslokal: https://view.wec360.com/studentbostader-i-sverige-ab/nyproduktion-spanga/gemensamhetslokal

Hyran är angiven för 2025 års nivå och kommer att justeras för år 2026.

Bilderna och 3D visning är illustrationer, avvikelser kan förekomma.

9 265 kr/mån

Ingår:

Internet Balkong Kallvatten Värme

Ingår inte i hyran:

Elförbrukning Router Varmvattenförbrukning

  • Antal rum: 1 rok
  • Boyta: 32 m²
  • Våning: 3

Området

Campus Star

Välkommen till våra nyproducerade lägenheter på Campus Star, det perfekta valet för dig som vill bo modernt, bekvämt och klimatsmart! Här erbjuds yteffektiva 1 RoK på 16 kvm och rymliga 2 RoK på 50 kvm, alla belägna i ett område med hållbara fastigheter, låg energiförbrukning och solceller. På Campus Star får du mer än bara en bostad, du får en levande och social boendemiljö. I de gemensamma lokalerna finns ytor för social samvaro såsom gym, biorum, stora kök och studiesal, helt gratis! I närområdet hittar du mataffärer som Lidl och Coop, Spånga centrum och idrottsanläggningar såsom Spånga IP. Från Campus Star tar du dig snabbt till Spånga station, och därifrån når du centralstationen på endast 15 minuter med pendeln. Campus Star är ett smart, bekvämt och socialt boende för dig som vill få ut det mesta av din studietid.

I byggnaden finns gemensamma tvättstugor, hiss, miljöstation, cykel- och bilparkering, elbilspool för uthyrning, gemensamma studierum, biorum och gym. Allt för att förenkla din vardag och ge dig ett härligt studentliv.

Hos oss går utveckling och miljö hela vägen hem. Vi på Studentbostäder i Norden erbjuder dig förmånliga boendetjänster till ett studentvänligt pris.

Genom vår Boendeapp så kan du ta del av bl.a.

  • Studentevent
  • Digital hyreshantering
  • Energismarta och miljövänliga tips
  • Rabatterade tjänster som streaming & säkerhet- och flyttjänster
  • Rabatterade försäkringar som hem-, olycks- samt trygghetsförsäkring.

Du vet väl om att du, som hyresgäst hos oss, har förtur till våra studentlägenheter på 18 orter vid flytt till en annan ort. Vi på Studentbostäder i Norden har en genomsyrande miljöanda där vi väljer klimatsmarta och hållbara alternativ i allt från energin som driver våra fastigheter till materialvalet av alla våra nybyggen. Vårt mål är att vi, tillsammans med dig som hyresgäst, minskar det ekologiska fotavtrycket!

I närheten