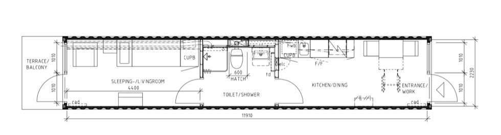
På Campus Kajen hittar du möblerade och prisvärda 1 Rok med eget kök och badrum. Lägenheterna om 26 kvm har alla egen ingång från loftgången som vetter mot innergården och vissa av lägenheterna har utsikt över vattnet.
Bra att veta:
- Bostaden är möblerad enligt nedan inventariebeskrivning.
- Kök är utrustade med kombinerad kyl/frys, spis med ugn och diskbänk.
- I hyran ingår värme, elförbrukning, kall- och varmvattenförbrukning samt internet (250/250).
- Husdjur är ej tillåtna.
- Hyran är angiven för 2025 års nivå och kommer att justeras för år 2026 efter att förhandlingarna är klara.
- Bilderna är exempelbilder, avvikelser kan förekomma
Inventarier
- Inbyggd sängstomme, bäddmadrass ingår ej.
- Fåtölj
- TV bänk
- Sideboard
- Inbyggd hylla
- Taklampor
- Läslampa
- Gardiner för glasparti
- Duschdraperi
- Köksbord