Utvalda förstahandskontrakt i Stockholm: flytta in april eller maj och få första månaden hyresfri. Läs mer.

Göteborg Studentbostad

Lärdomsgatan 9 lgh 1206

Inflyttning: 1 jul. 2026 Ansök senast: 30 apr. 2026

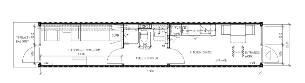
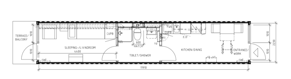
På Campus Kajen hittar du möblerade och prisvärda 1 Rok med eget kök och badrum. Lägenheterna om 26 kvm har alla egen ingång från loftgången som vetter mot innergården och vissa av lägenheterna har utsikt över vattnet.

Bra att veta:

  • Bostaden är möblerad enligt nedan inventariebeskrivning.
  • Kök är utrustade med kombinerad kyl/frys, spis med ugn och diskbänk.
  • I hyran ingår värme, elförbrukning, kall- och varmvattenförbrukning samt internet (250/250).
  • Husdjur är ej tillåtna.
  • Hyran är angiven för 2025 års nivå och kommer att justeras för år 2026 efter att förhandlingarna är klara.
  • Bilderna är exempelbilder, avvikelser kan förekomma

Inventarier

  • Inbyggd sängstomme och madrass om 90×200 cm.
  • Fåtölj
  • TV bänk
  • Sideboard
  • Inbyggd hylla
  • Taklampor
  • Läslampa
  • Gardiner för glasparti
  • Duschdraperi
  • Köksbord
  • Stolar 2 st

6 288 kr/mån

Ingår:

Hushållsel Vatten Bredband Värme

  • Antal rum: 1 rok
  • Boyta: 26 m²
  • Våning: 2

Området

Campus Kajen

Välkommen till Campus Kajen, studentbostaden där Chalmers bokstavligen ligger runt hörnet och vattnet är din närmsta granne. Här bor du i hjärtat av Lindholmen, en av Göteborgs mest moderna och expansiva stadsdelar.

På Lärdomsgatan bor du i moderna Lindholmen nära gym, bibliotek, restauranger och butiker. Med färja, buss eller cykel är du inne i centrala Göteborg på ett par minuter. Campus Kajen är det perfekta valet för dig som vill leva studentlivet fullt ut, nära skolan, nära staden och nära framtiden.

I byggnaden finns bokningsbara tvättstugor, hiss, miljöstation och cykelställ.

Hos oss går utveckling och miljö hela vägen hem. Vi på Studentbostäder i Norden erbjuder dig förmånliga boendetjänster till ett studentvänligt pris.

Genom vår Boendeapp så kan du ta del av bland annat:

  • Studentevent
  • Digital hyreshantering
  • Energismarta och miljövänliga tips
  • Rabatterade tjänster som streaming & säkerhet- och flyttjänster
  • Rabatterade försäkringar som hem-, olycks- samt trygghetsförsäkring.

Du vet väl om att du, som hyresgäst hos oss, har förtur till våra studentlägenheter på 18 orter vid flytt till en annan ort. Vi på Studentbostäder i Norden har en genomsyrande miljöanda där vi väljer klimatsmarta och hållbara alternativ i allt från energin som driver våra fastigheter till materialvalet av alla våra nybyggen. Vårt mål är att vi, tillsammans med dig som hyresgäst, minskar det ekologiska fotavtrycket!

I närheten