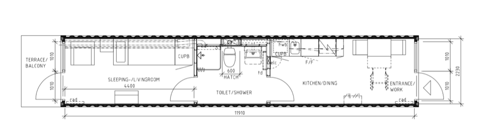
At Campus Kajen you will find furnished and affordable 1 Rok with its own kitchen and bathroom. The 26 m2 apartments all have their own entrance from the loft hallway that faces the inner courtyard and some of the apartments have a view of the water.
Good to know:
- The home is furnished according to the inventory description below.
- Kitchens are equipped with a combined fridge/freezer, stove with oven and sink.
- The rent includes heating, electricity consumption, cold and hot water consumption and internet (250/250).
- Pets are not allowed.
- The rent is stated for the 2025 level and will be adjusted for the year 2026 after the negotiations are complete.
- The pictures are example pictures, deviations may occur
Inventories
- Built-in bed frame.
- Armchair
- TV stand
- Sideboard
- Built-in shelf
- Ceiling lamps
- Reading lamp
- Curtains for glass section
- Shower curtain
- Kitchen table
- Chairs 2 pcs
- Köksbord