Utvalda förstahandskontrakt i Stockholm: flytta in i februari och få första månaden hyresfri. Läs mer.

Stockholm Student Apartment

Bromstensvägen 150 lgh 1204

Move-in date: 1 Mar. 2026

At Campus Star, we offer newly built, climate-smart, and space-efficient apartments, ranging from 1 room and kitchen (1 RoK) of 16 sqm to spacious 2 rooms and kitchen (2 RoK) of 50 sqm. All apartments feature a private kitchen and bathroom.

Good to know:

Campaign: Sign a lease for an apartment with move-in on February 1 and get February rent-free! Valid from January 15, 2026.

Campaign: Sign a lease for an apartment with move-in on March 1 and get 50% off your first month’s rent! Valid from January 15, 2026.

Drop-in viewings are held every other Wednesday on odd-numbered weeks at 4:30 PM in our show apartment (16 sqm). Please gather outside the entrance at Nekvägen 41 if you wish to attend. No viewings are held on public holidays.

The hallway features built-in storage in the hallway/room.

Kitchens are equipped with a combined fridge/freezer, stove with oven, and sink.

Bathrooms are equipped with a washbasin, mirror cabinet, shower, and toilet.

Optional extras such as a microwave, washing machine, and dishwasher can be added for an additional monthly fee.

The rent includes heating, cold water consumption, and internet (250/250 Mbps).

Electricity and hot water consumption are charged to the tenant based on actual usage.

Study rooms, gym, cinema room, and bookable kitchens are included in the rent.

3D tour – Common areas:

https://view.wec360.com/studentbostader-i-sverige-ab/nyproduktion-spanga/gemensamhetslokal

3D tour – Apartment with balcony (also available with a French balcony or window):

https://view.wec360.com/studentbostader-i-sverige-ab/nyproduktion-spanga/typ-m

The rent stated is based on 2025 rates and will be adjusted for 2026.

Images and 3D tours are for illustrative purposes only; deviations may occur.

10 090 SEK/mo

Included:

Balcony Cold water Internet Heat

Not included in rent:

Electricity Router Hot water

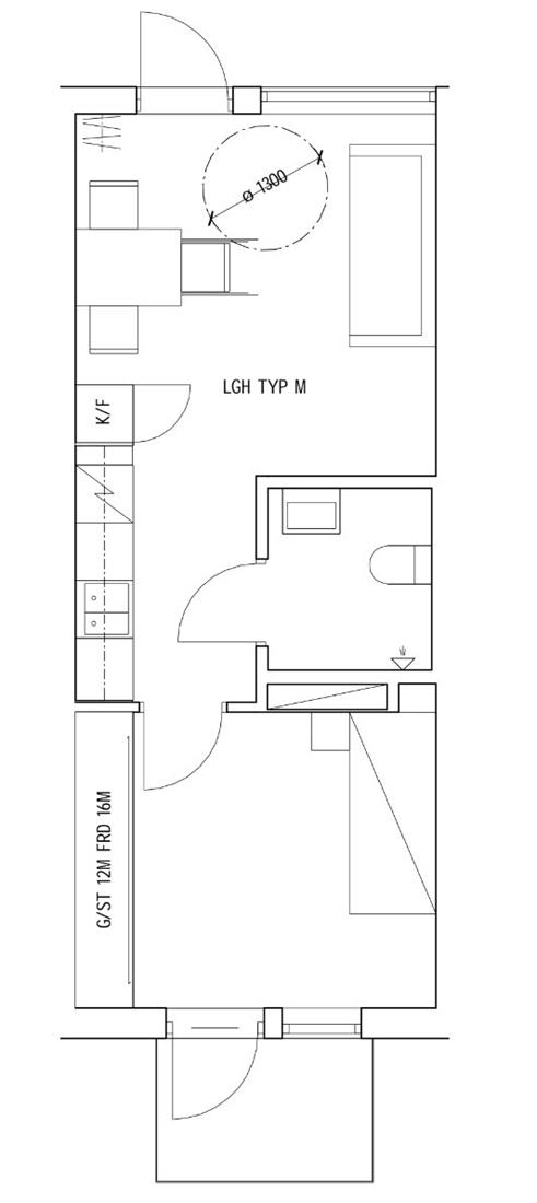
  • Number of rooms: 2 rok
  • Living area: 35 m²
  • Floor: 2

Area

Campus Star

Welcome to our newly built apartments at Campus Star, the perfect choice for those who want to live modern, comfortable and climate-smart! Here we offer space-efficient 1 RoK of 16 sqm and spacious 2 RoK of 50 sqm, all located in an area with sustainable properties, low energy consumption and solar cells. At Campus Star you get more than just a home, you get a vibrant and social living environment. In the common areas there are areas for social gathering such as a gym, cinema room, large kitchen and study room, completely free of charge! In the vicinity you will find grocery stores such as Lidl and Coop, Spånga center and sports facilities such as Spånga IP. From Campus Star you can quickly get to Spånga station, and from there you can reach the central station in only 15 minutes by shuttle.

Campus Star is smart, comfortable and social accommodation for those who want to make the most of your study time.

The building has shared laundry facilities, an elevator, an environmental station, bicycle and car parking, an electric car pool for rent, shared study rooms, a cinema room and a gym. Everything to simplify your everyday life and give you a wonderful student life.

With us, development and the environment go all the way home. We at Studentbostäder i Norden offer you affordable housing services at a student-friendly price.

Through our Housing app, you can take advantage of, among other things:

  • Student events
  • Digital rental management
  • Energy-smart and environmentally friendly tips
  • Discounted services such as streaming & security and moving services
  • Discounted insurance such as home, accident and security insurance.

You are well aware that you, as a tenant with us, have priority access to our student apartments in 18 locations when moving to another location. We at Studentbostäder i Norden have a pervasive environmental spirit where we choose climate-smart and sustainable alternatives in everything from the energy that powers our properties to the choice of materials for all our new buildings. Our goal is that we, together with you as a tenant, reduce the ecological footprint!

I närheten